Atelier Concept
Anthony Courquin : Maître d’œuvre à Épannes pour vos projets de construction et rénovation
Installé près de La Rochelle et d’Épannes, je vous accompagne dans tous vos projets, que ce soit pour construire, rénover ou repenser un espace. Un seul interlocuteur, des solutions claires, un suivi de A à Z.
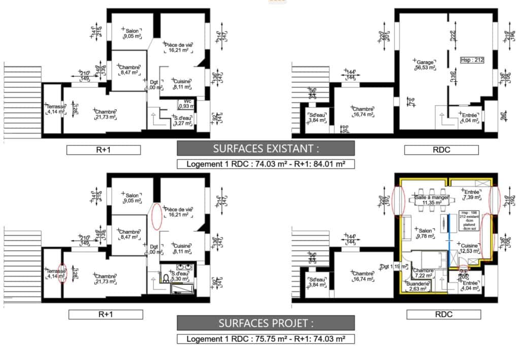
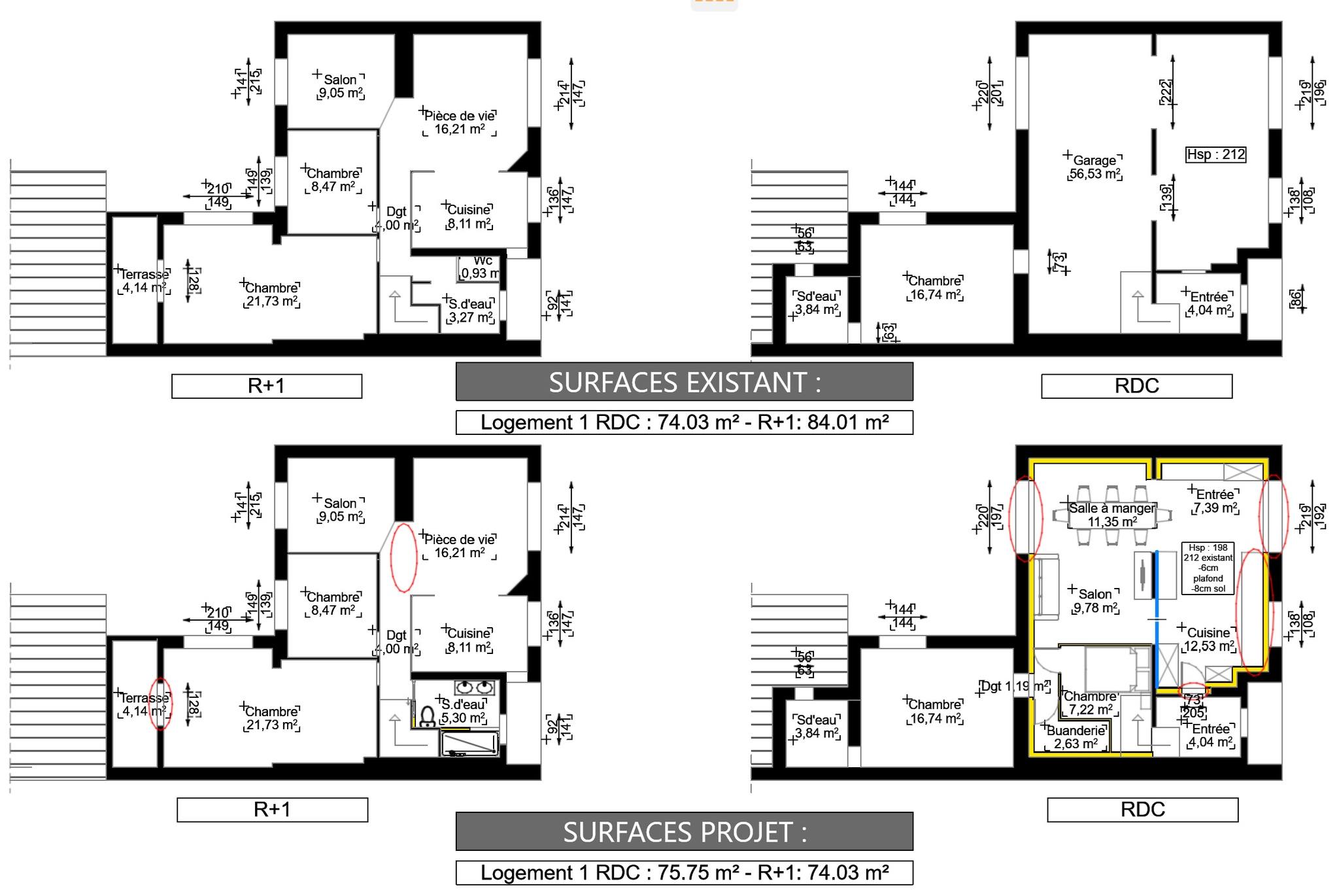
Avant / Après : de réelles transformations
Chaque lieu a ses contraintes, mais aussi son potentiel. Ces comparatifs avant/après témoignent des évolutions apportées à différents projets : réaménagement d’espaces, rénovation complète, extension ou valorisation intérieure.
Maîtrise d'oeuvre en Charente-Maritime et dans les Deux-Sèvres
Je suis Anthony Courquin, maître d’œuvre basé à Épannes. Avec Atelier Concept, j’interviens entre La Rochelle et Niort, en Charente-Maritime (17) et dans les Deux-Sèvres (79), pour accompagner les particuliers comme les professionnels dans leurs projets de construction et de rénovation.
Depuis mes débuts, j’aborde chaque chantier comme si c’était le mien. Ce qui compte pour moi, c’est la confiance, la proximité, et un accompagnement sérieux, du premier croquis jusqu’à la remise des clés.
Je vous guide à chaque étape : esquisse (ESQ), avant-projet (APS, APD), permis de construire ou déclaration préalable, exécution, suivi des travaux. J’assure également le chiffrage, la réalisation de plans 2D, maquettes 3D, 3D extérieur et décoration d’intérieure, pour que vous puissiez vous projeter concrètement.
Je travaille avec des artisans fiables et je veille à ce que tout soit bien fait, dans les règles, et sans mauvaise surprise. Mon objectif est simple : que vous soyez serein tout au long du projet, et fier du résultat final.
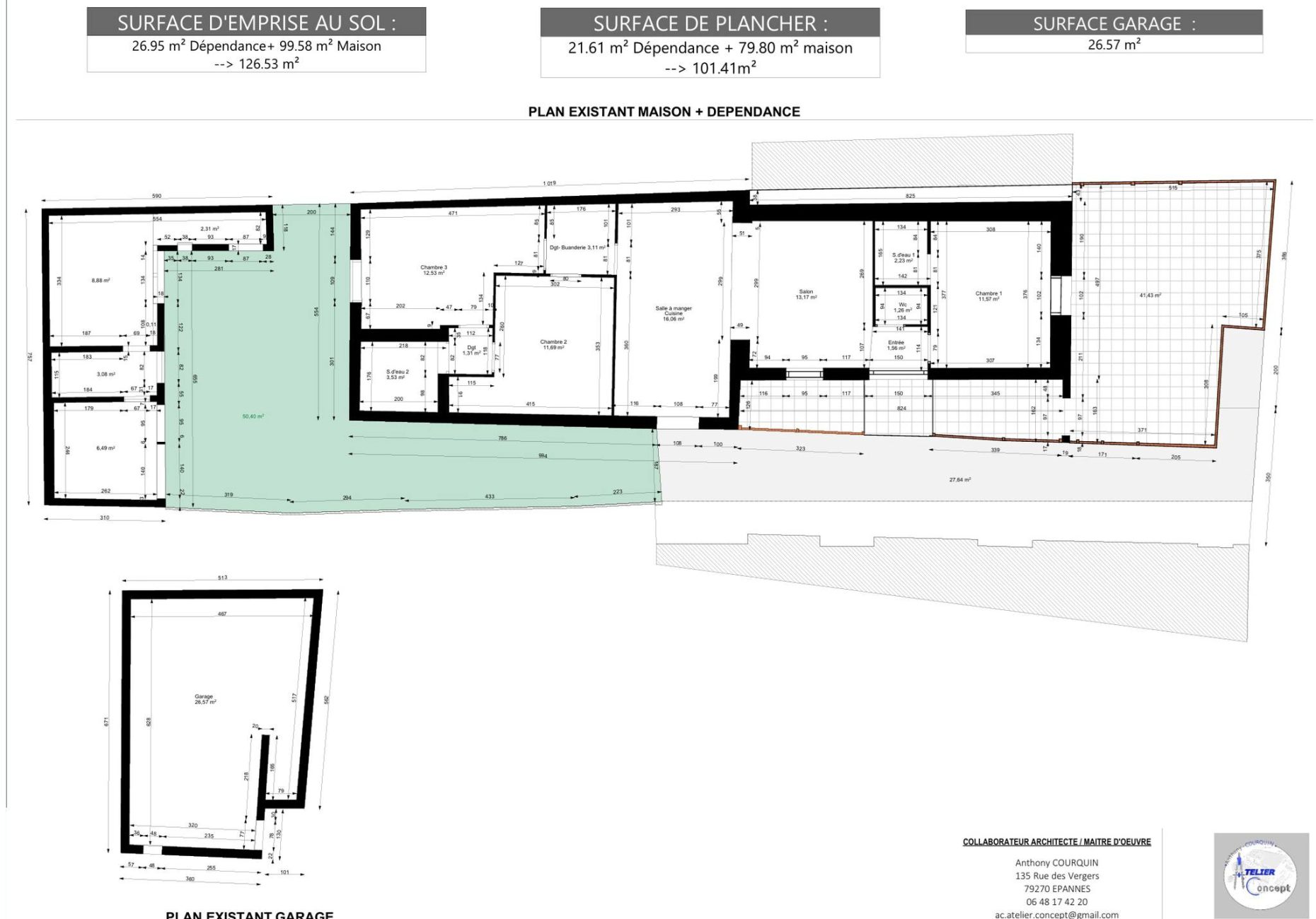
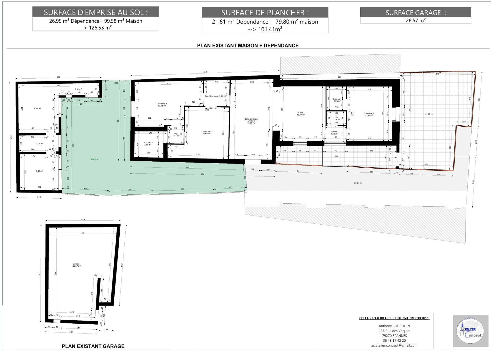
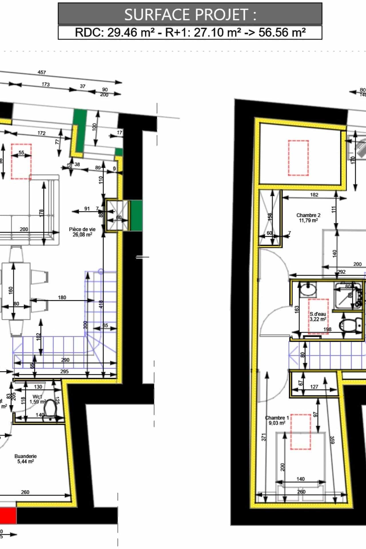
Plan 2D : une première étape essentielle pour concevoir votre projet
Pour que vous puissiez vous projeter dès les premières phases, je réalise un plan 2D personnalisé de votre projet.
Ce document vous offre une vision claire de l’agencement des volumes, de la répartition des pièces, des ouvertures et des circulations. C’est une base de travail indispensable, que ce soit pour une construction de maison, une rénovation ou une extension.
Le plan 2D me permet de vous présenter une première traduction concrète de vos idées, tout en intégrant les contraintes techniques, réglementaires et esthétiques.
Il facilite les échanges, vous aide à prendre les bonnes décisions, et structure le reste du projet dans une logique de maîtrise d’œuvre rigoureuse .
Des services complets pour donner vie à vos projets
Témoignages de clients
Publié sur Clarisse Moutel27 Mai 2025Trustindex vérifie que la source originale de l'avis est Google. Très professionnel, M. Courquin est à l'écoute, se rend disponible pour échanger et s'adapte au mieux au projet de ses clients. Il nous a proposé des plans très quali et une visualisation de notre projet qui nous a aidé à nous projeter. Très bonne expérience. Je recommande.Publié sur Corinne André7 Mai 2025Trustindex vérifie que la source originale de l'avis est Google. Professionnel, rapide dans les devis, Anthony très sérieux, je recommande 👌Publié sur Aurélie Franck24 Mars 2025Trustindex vérifie que la source originale de l'avis est Google. Merci à Anthony de chez atelier concept de nous avoir accompagné dans notre projet de construction. Bon relationnel, qualité au RDV et de bon conseil . Je vous le recommande.Publié sur Yann-Eric Fleurant19 Décembre 2024Trustindex vérifie que la source originale de l'avis est Google. Monsieur Courquin se démène toujours pour essayer de trouver les bonnes solutions. Il est accessible et sympathique.Publié sur Jee Sea21 Septembre 2024Trustindex vérifie que la source originale de l'avis est Google. Très bonne relation pour cette première phase du Projet. Nous avons fait appelle à M COURQUIN pour la réalisation des plans + chiffrage d'une extension. Il nous a mis en relation avec ses partenaires pour finaliser les chiffrages. Le contact est très bien passé avec tous les artisans. Nous avons hâte de passer à la réalisation !Publié sur A Toda Luz Pleins-Feux9 Septembre 2024Trustindex vérifie que la source originale de l'avis est Google. Conseils avisés, accompagnement adapté à notre situation financière, professionnalisme à travers le suivi de notre chantier de rénovation sont les qualificatifs de M. Courquin. Confiance totale. Recommandation sans hésiter.Publié sur Fanny Trinquier23 Août 2024Trustindex vérifie que la source originale de l'avis est Google. Nous avons contacter Anthony pour l'extension de notre maison de famille en charente maritime. Il est à été très réactif à notre demande et a fait preuve d'un grand professionnalisme. Ses prix sont tout à fait correct en contre partie du travail fournis, il à même été patient concernant certaines modifications. Nous recommandons atelier conceptPublié sur Damien T20 Mars 2024Trustindex vérifie que la source originale de l'avis est Google. Anthony nous a accompagné pour la réalisation des plans, des déclarations de travaux et le chiffrage de notre projet de rénovation d'une chambre parentale, incluant de nombreux corps de métier. Il a été de très bon conseil, et sait s'entourer d'un réseau d'artisans locaux. Ses tarifs de maîtrise d'ouvrage sont tout à fait corrects et en relation avec sa prestation de qualité.Publié sur Romain12 Mars 2024Trustindex vérifie que la source originale de l'avis est Google. J’ai recherché pendant plusieurs semaines un maitre d’oeuvre dans la région capable de m’aider à compléter un dossier pour le dépôt d’un permis de construire pour un projet atypique. Anthony est le seul a m’avoir répondu rapidement et il a réalisé un travail exemplaire. En effet on sent qu’il connait parfaitement son sujet car il n’a laissé la place à aucun doute. Il a fait preuve de professionnalisme, ponctuel lors des rdv, répond au téléphone rapidement même lorsque le permis a été accepté et le dossier clôturé. Si j’avais un autre projet je contacterai Anthony sans hésiter.
Actualités & projets en cours
Découvrez mes dernières réalisations et l’avancée de vos projets, entre constructions, rénovations et suivis de chantier.
Un projet ? Je suis là pour vous accompagner.
Je m’investis dans chaque projet comme s’il s’agissait du mien, avec sérieux, proximité et le souci du travail bien fait.
Les missions d’Atelier Concept
Chaque projet est unique, mais la méthode reste claire et approuvée. Je vous accompagne à chaque étape, aux devis tous corps d’état, de la conception aux démarches administratives, jusqu’au suivi des travaux et à la remise des clés.
RDV + ESQ : Premier contact / Esquisse
PC / DP : Permis de Construire et Déclaration Préalable
APS : Avant-Projet Sommaire
EXE : Exécution
APD : Avant-Projet Définitif
Remise des clés
Quelques projets réalisés
Voici un aperçu de chantiers menés avec soin pour des particuliers en Charente-Maritime et Deux-Sèvres.










